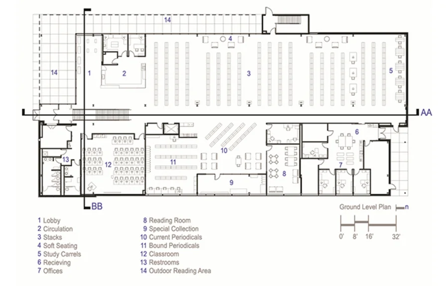
UDVAR-HAZY LIBRARY + LEARNING CENTER
CLIENT: Embry Riddle Aeronautical University

LOCATION: Prescott, AZ
AREA: 32,572 GSF
STATUS: Built
AWARDS: AIA Arizona Award | AIA National Higher Education Campus Award

The new library has become a metaphor for flight: the entry sequence into the building is defined by a monumental staircase and adjacent wall, striking a vertical line against the horizontal building composition. Inside the building, the stairs ascend upward to level two in a continuous northward direction. The facility is both functional and captivating for today’s Gen-Y students who are able to learn anywhere and anytime. The building responds to this media-drenched era by providing readily available technology in a setting that is not only comfortable, but also acts as the anchoring centerpiece for the campus. The library is composed of metal and glass, as if weightlessly floating above its surroundings. As visitors reach level two, they are greeted with panoramic views of the mountains on the horizon toward the southeast and west in the comfort of soft-seating areas. The sense of ascension invoked by this design is analogous to the feelings of flight as an airplane ascends from the runway. This is the first project in which architects and engineers used Building Information Modeling (BIM) in the state of Arizona. 

© MIIM Designs LLC Terms of Service